空気作動弁,600-4A
  • 製品概要
  • 仕様
  • 形式
  • 構造
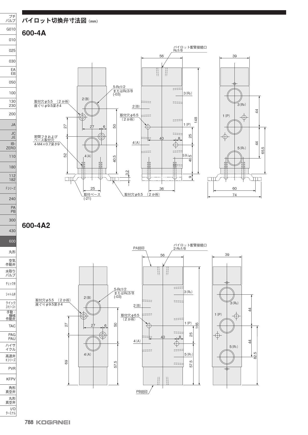
  • 寸法図
  • 資料
  • 注意事項
空気作動弁600-4Aシリーズ
CADダウンロード・
製品のご購入